


电话:4000096580
邮箱:sunjt@sqbang.com
地址:深圳市南山区高新南一道6号TCL大厦A303
2020年初,新型冠状病毒突然传播,为全社会按下了暂停按钮。老年人作为新型冠状病毒肺炎易感人群和高危人群,在这场防疫战争中尤为脆弱,尤其是那些居住在养老机构、养老社区的老年人。
政府出台了多项政策,指导养老机构的防疫工作。《养老机构新型冠状病毒感染的肺炎疫情防控指南(第二版)》由民政部发布(以下均称《指南》)。从多个方面介绍了养老机构疫情的防治措施。

养老机构应该是老年人幸福的地方。在流行病的考验下,合理的设计可以更好地为老年人提供健康温馨的服务。
本文将从养老机构中的出入口、内部流线、居室户型、公共空间、后勤空间以及设备系统等多个设计角度,探讨疫情之下的养老建筑防疫设计要点。

《指南》中明确了养老机构出入管理:按照“外防输入、内防感染”的原则,坚持以人为本,充分考虑老年人刚性服务需求,进一步规范了疫情下养老机构中的可入情形,明确了禁入情形。
1.养老机构设置单独出入口
许多养老项目形式复杂,往往与商业、居住等其他形式相结合。在出入口设计上,养老机构应建立独立的出入口机制,有效分离,这对疫情防控起着关键作用。
▲重庆龙湖椿山万树颐年公寓养老项目——出入口常时疫时灵活切换
以重庆龙湖椿山万树颐年公寓养老项目为例,该养老机构位于城市商业区,由商业+养老+公寓三种属性组成,与周边商业、社区高度融合形成“城市共生,持续照护”的服务特色。
在疫情期间,机构可以通过有限的隔离来控制出入口。本设计预留的医疗出入口作为养老机构的出入口,与公寓的出入口分开,保证老年人的隔离安全。
2.养老机构出入口设置缓冲区
养老机构出入口设计应预留缓冲空间。当有家庭成员希望运送老人与外界接触时,在缓冲区内保持一扇门关闭。使用这个封闭的空间,以避免与外界接触时感染的风险。

如何防止病毒的外部输入和内部传播,是养老机构亟待思考和解决的问题。参照《指南》,我们分析了养老机构建设中的一些流线组织策略,以帮助养老机构提高在类似突发公共卫生事件中的应对能力。
1.区分医疗动线与活动动线
在组织养老单位的流线时,要尽量将医疗动线和职工动线与老年人动线分开。医务人员在工作时,应尽量减少老年人活动的公共区域通行次数。

▲太保家园·成都国际颐养社区——医疗与活动流线互相区分
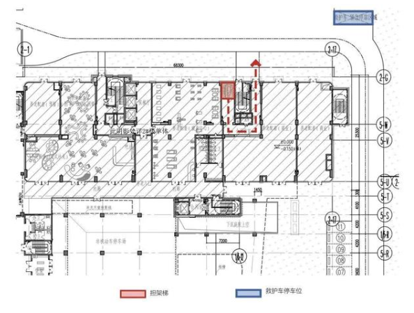
2.规划独立送医流线
在发现疫情、运送病人到外就医时,需要设计一条单独的、快速的流线通道。一些电梯应该设置在大楼的边缘,这样病人可以通过电梯到外面进入救护车。

▲太保家园·成都国际颐养社区——送医流线独立设计
3.送餐到户流线组织
疫情期间尽量减少居民聚集活动,集中用餐方式改为集中配餐。除加强社区管理和人员安排外,建筑的流线型组织应具有一定的灵活性。例如,在特殊情况下,电梯可作为餐饮电梯,直接到达各楼层的餐饮区,并通过公共走廊直接到达各住户。公共走廊应设置通风消毒系统。

▲太保家园·成都国际颐养社区——送餐到户流线

老年人具有特殊的身体状态,许多家庭型养老机构以两居室及多居室的形式存在。在这种情况下,在室内进行有效隔离是防疫工作的重要组成部分。对于多居室来说,在流行期不可能形成绝对的单一隔离。防疫工作要以居室为单位,加强检测和预防,尽量减少卧室感染的可能性。
1.居室入口设计缓冲空间
老人进屋后,可在缓冲空间脱衣服、洗手、摘下口罩。护理人员可以对该区域进行消毒,以避免外界公共环境的过多影响。

其中,缓冲空间包括挂衣区(为出门的外套、帽子悬挂区)、洗手消毒区(充分洗手消毒)、置物台(从外部携带回来的钥匙等物品要控制带入居住区内)、垃圾桶(佩戴过的口罩及时处理)。
2.居室卫生间避免粪口传播
病毒有一种“粪口传播”的方式,因此安全地清理卧床老人的粪便非常重要。建议在卧床不起的老人房内长期设置可消毒的污水池,并及时对便盆进行清洗消毒。房间内老年人的衣服、床单具备单独清洗消毒的条件。房间内尽量设置洗衣机,便于单独清洗消毒。
3.居室空间布局可灵活转化,满足不同情况下的使用需求

居室空间非单人居室时,疫情期间同居室老年人间具备相互隔离的条件。产品设计时建议预留一定的转换弹性。

▲重庆龙湖椿山万树颐年公寓养老项目——护理共享房互相隔离
以重庆龙湖春山万树颐年公寓为例,对于这种护理合用房,虽然两人住在一个护理合用房内,但在居住空间上是孤立的,因此独立的居住空间在一定程度上起到了保障安全的作用。
4.保障居室通风换气
《指南》指出,老年人卧室应经常通风,且通风时间大于30分钟。冬天,房间通风常常使老人在风中受凉。可采用换气装置或家用新风系统对老年人房间空气进行消毒。此外,出于安全考虑,许多卧室会采用上悬窗或下悬窗的形式。当室内没有换气装置或家用新风系统时,很难保证房间的通风。建议采用可水平开启的上悬窗或下悬窗形式,以满足不同条件下的通风要求。

疫情期间,为了避免聚集性感染,养老机构中的公共区域需进行特定的管控。餐厅、中庭等公区不仅要做到灵活可变,更要兼具调节老年人身心健康的作用。
1.餐厅设计:可分可合,灵活多变,满足单独就餐的需求
在疫情期间,作为一个人口密集的公共场所,餐厅应该关闭或改造。对于不能在室内就餐的情况,在室内就餐时应合理控制桌椅空间,可分可合,灵活多变,必要时可单独用餐。

▲成都东原光明光电养老公寓项目——就餐空间灵活多变
2.中庭/天井可封闭设计,避免错层感染
在许多老年建筑的设计中,为了获得更好的照明采光,让老年人有一个开放的公共活动空间,往往在中心设置大中庭/天井。在疫情期间,这种建筑容易引起错层感染。在消防条例中,建筑物的内部庭院不允许完全开放。在老年建筑的设计中,中庭/天井应有一定的隔离措施。例如,在露台周围使用可密封的玻璃外壳,可以满足采光要求,避免爆发错层感染。

▲中信杭州延安路88号大楼装修项目——可封闭静态中庭

▲中信杭州延安路88号大楼装修项目——可封闭动态中庭
3.室外景观室内化,足不出户感受到绿色与阳光
在疫情期间处于隔离状态,老年人的活动受到限制。老年人如果长期不能进行户外活动,很容易产生负面情绪,这就需要进行大量的心理咨询。很多户外景观都是在室内种植的,这样老人不用走出机构,就能感受到绿色和阳光。


▲远洋椿萱茂璞湾项目——室外景观室内化

在封闭式管理下,医护人员和后勤人员等的住宿和其他后勤保障十分重要。在隔离期间,缺乏必要的后勤生活条件会影响员工的生活情绪,进而降低护理质量。
▲天津万科怡园长者中心——后勤空间居室设计
以天津万科怡园长者中心为例,设计时将未开放楼层空间留作了员工的独立后勤空间。疫情期间隔离状态下,员工不方便出入之时,不会产生生活上的不便。

▲天津万科怡园长者中心——后勤空间居室平面
后勤空间包括员工宿舍、独立卫生间、办公空间以及员工就餐区,一方面保证了员工的日常生活需求,另一方面养老机构的日常运转也不会受到太大影响。

许多养老机构在公共区域使用中央空调系统。但是,为了避免疫情期间的交叉感染,许多中央空调系统被停止运行。这就带来了老年人生活舒适性的问题:一是如何保证室内温度;二是如何保证空气流通。
1.空调系统减小内循环
尽量缩小空调的内循环范围。建议每层设置空调,不要与其他楼层连接。同时,各楼层应根据规模配备内循环空调系统。必要时,在养老机构的房间内设置独立的家用空调,使其在中央空调系统停用时可以继续使用。同时,该机制应配备燃气供暖系统,以确保客厅和公共区域的舒适性。
2.新风系统保障空气流通
为了保障疫情期间的空气流通,养老机构内应设计户式新风系统。每个房间设置换风口,卫生间里设置排风扇,以便每天定时开窗通风。

▲天津万科怡园长者中心——室内设计排风装置